ETW in Köln-Bocklemünd
Beschreibung
Dachgeschoss-Wohnung mit drei Zimmern. Diese Wohnung ist zur Zeit noch vermietet. Die Eigentumswohnung ist Teil eines Mehrfamilienhaus mit insgesamt 6 Parteien, das 1973 in Massivbauweise erbaut wurde.
Das Grundstück des Mehrfamilienhauses beträgt 376 m². Das Objekt verfügt über vier Garagen und ist vollunterkellert.
Preis: 255.000 €

AUSSTATTUNG
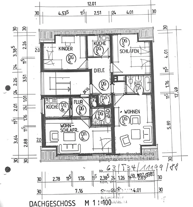
Die Wohnung DG links (5) mit einer Gesamtwohnfläche von 69,98 m² ist aktuell vermietet. Die Nettomiete kann gerne in einem persönlichen Gespräch erörtert werden.
Zur Wohnfläche gehören:
Diele
Küche
Bad/WC
Kinderzimmer
Schlafzimmer
Wohnzimmer
Zum Teileigentum gehört ein Abstellraum im Spitzboden von
5,26 m².
Da die Wohnung zum aktuellen Zeitpunkt noch vermietet ist, können keine Bilder der Wohnung zur Verfügung gestellt werden. Vielen Dank für Ihr Verständnis.

